一、基本信息PK
| 项目: | 常德龙湖双珑原著 | 常德碧桂园 |
| 项目地址: | 湖南省常德市武陵区北部新城 | 常德市武陵区桃花源路与紫菱西路交汇处(东北角) |
| 开发商: | 常德龙柳置业有限公司 | 碧桂园集团 |
| 绿化率: | 37.00% | 35.00% |
| 容积率: | 2.50 | 1.15 |
| 建筑类型 | 普通住宅,独栋 | 双拼,空中别墅 |
| 物业类型 | 欧式 | 欧式,澳式 |
| 项目特色 | 特色别墅 | 豪华居住区,宜居生态地产 |
| 产权年限 | 常德龙湖双珑原著普通住宅产权为70年,独栋产权为70年 | 常德碧桂园双拼产权为70年,空中别墅产权为70年 |
| 均价: | 6500.00元/平方米 | 7450.00元/平方米 |
| 开盘时间: | 2019年3月开盘 | 2019-05-31 |
| 交房时间: | -- | 2021年交房 |
二、周边信息PK
1、常德龙湖双珑原著
交通状况:高铁交通在建(黔张常高铁,厦渝通道,呼南高铁)
道路交通:长张高速、二广高速、朗州大道
公交线路,16路、24路、28路
BRT快速交通
水路交通:穿紫河至柳叶湖水上航线,景区规划建设的月亮大道、太阳大道以及水上巴士
机场交通:桃花源机场
幼儿园:自带幼儿园
中小学:北部新城实验学校
综合商场:项目家门口自带风情商业街和致雅园商业街
医院:常德湘雅医院、
2、常德碧桂园
交通状况:公共交通:H2、H16快速公交系统
城市路网:位于常德大道与桃花源路交汇处,交通十分便利;临常德大道,方便城乡互动;临界桃花源大道直通机场,**即可俯瞰世界;项目奔桥河大桥拉通后,**速缩短与各商圈的距离,升级为项目新卖点。
三、户型信息PK
1、常德龙湖双珑原著
常德龙湖双珑原著户型类别:3居,4居
户型面积:109.00平方米-166.00平方米
户型举例:

2、常德碧桂园
常德碧桂园户型类别:4居,5居,6居
户型面积:1.00平方米-760.00平方米
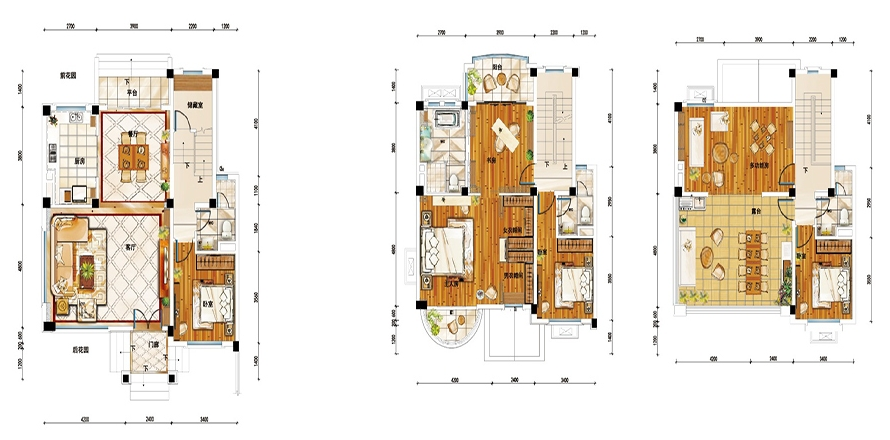
户型举例:

文章内容涵盖的楼盘房价,报价时间:2021年02月27日,价格有效期:28天 该价格为参考价格,实际价格以开发商为准!
网站声明 : 本网站宗旨为广大用户免费提供信息服务,数据来源互联网,本站不声明或保证所展示的信息准确性和完整性,仅供参考使用。购房者参考本站信息,进行房屋交易所造成的任何后果与本网站无关。网站所提户型面积均指建筑面积。若网站信息有误,投诉电话:400-6123-572。
编辑者:admin
分享到: